
Obec: | Vinné |
---|---|
Okres: | Michalovce |
Kraj: | Košický kraj |
Druh: | Domy |
Typ: | Predaj |
Typ domu: | Rodinný dom |
Spoločnosť Dukla Reality Vám predstavuje ROZOSTAVANÝ DOM s výhľadom na vodnú nádrž v rekreačnej oblasti Zemplínska Šírava časť Biela Hora. (vzdialenosť do Michaloviec 3 km autom)
Parametre stavby a pozemku:
- pozemok: 754m2, skoro rovinatý slnečný, vzdialený do 50m od vodnej plochy, s priamym výhľadom na ňu a zjazdom do vody pre spúšťanie lodi.
-144m2 zastavaná plocha + 32,7m2 terasa
- IS: vodovod, kanalizácia, elektrina 220/380V , optika
- platné stavebné povolenie, na liste vlastníctva definovaný ako rekreačný dom
- možnosť získania trvalého pobytu, vrátane poštovej adresy
- pravidelná zimná údržba ciest, pravidelný odvoz smetí
- stavba- bungalov- 4 izbový + terasa, aktuálne dokončený do štádia hrubej stavby s možnosťou dokončenia do holodomu. Cena dokončenia sa môže líšiť v závislosti od použitých materiálov
- materiál stavby: PORFIX, drevený krov s plechovou strechou Rigment
-v cene su zahrnuté plastové okna a vchodové dvere
- tichá, pokojná lokalita so širokou možnosťou rekreačného využitia (plávanie, kúpanie, jachting, skútre, lode, rybolov a podobne)
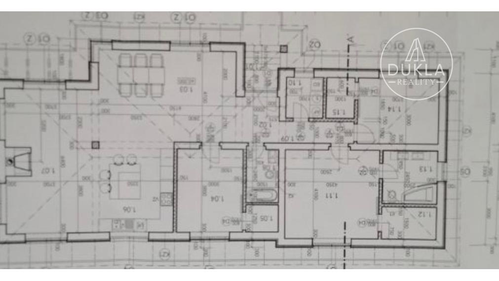
Dispozícia domu:
- priestranná kuchyňa s jedálenskou časťou a obývačkou (73,6m2) s výstupom na terasu (32,7m2) s výhľadom na vodu
- hlavná spálňa (19m2 + šatník + vlastná kúpeľňa)
- detská izba (12,45m2 + šatník + vlastná kúpeľňa)
- detská izba (12m2)
- technická miestnosť s toaletou (3,85m2)
- chodba + zádverie
BENEFITY:
- úžasná veľkosť terasy
- lokalita s výhľadom na Zemplínsku Šíravu
- bývanie v peknej prírode v blízkosti mesta Michalovce.
- tento rozostavaný dom si dokončíte podľa vlastných predstav.
- dostatočná šírka a rozloha pozemku s možnosťou realizácie bazéna a garáží
- výborné na celoročné bývanie, alebo ako investícia s možnosťou prenájmu
-staviteľ s dlhoročnými skúsenosťami
Radi Vám poskytneme bližšie informácie a dohodneme termín obhliadky na t.č.0949 383 777