
Ulica: | Chotčanská |
---|---|
Obec: | Stropkov |
Okres: | Stropkov |
Kraj: | Prešovský kraj |
Druh: | Pozemky |
Typ: | Predaj |
Typ pozemku: | Pozemok pre rodinné domy |
Realitná kancelária Dukla reality ponúka na predaj lukratívny pozemok pri rybníku a rozostavaný rodinný dom v meste Stropkov.
Pozemok je rovinatý a nachádza sa v okolitom zastavaní rodinných domov v blízkosti rybníka.
Výmera pozemku je 1010 m2. K pozemku vedie novovybudovaná prístupová cesta, ktorej podiel je zahrnuty v cene.
Stavba sa predáva s vydaným právoplatným stavebným povolením a kompletnou projektovou dokumentáciou.
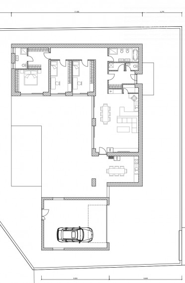
Novostavba rodinného domu so samostatne stojacou dvojgarážou a exteriérovým bazénom bude realizovaná v Stropkove na parcele č. KN 1572/15.
Aktuálne je zrealizovaná základová doska s vnútornými rozvodmi kanalizácie, vodovodu, zemnenie a prívodu elektrickej prípojky.
Rodinný dom:
Objekt rodinného domu je navrhnutý ako jednopodlažný bez podpivničenia s valbovou strechou. Pôdorys stavby je v tvare L o vonkajších rozmeroch 18,90 x 17,40 m. Rodinný dom je navrhnutý ako jednobytový, dispozičné riešenie je zrejmé z projektovej dokumentácie.
Okenné a dverné otvory sa nachádzajú na všetkých štyroch stranách stavby. Nosnú konštrukciu budú tvoriť zvislé nosné obvodové konštrukcie z tvárnic Ytong. Rámy okien a dverí sú plastové. Fasáda je tvorená silikátovou vonkajšou omietkou Baumit. Povrchová úprava strechy je z betónovej krytiny. V stavbe sa uvažuje s podlahovým vykurovaním tepelným čerpadlom a riadeným vetraním s rekuperáciou.
Zastavaná plocha : 206,11 m2
Užitková plocha : 155,64 m2
Objekt má rodinný charakter a z tejto funkcie vyplýva aj jeho stvárnenie.
Garáž:
Objekt dvojgaráže je navrhnutý ako jednopodlažný bez podpivničenia s valbovou strechou. Pôdorys stavby je v tvare obdĺžnika o vonkajších rozmeroch 7,00 x 8,50 m.
Rámy okien a dverí sú plastové. Fasáda je tvorená silikátovou vonkajšou omietkou Baumit. Povrchová úprava strechy je z betónovej krytiny.
Zastavaná plocha : 59,50 m2
Užitková plocha : 50,56 m2
Za cenu 139 500 € získate:
- stavebnú parcelu 1010 m2
- 1/5 podiel na novovybudovanej prístupovej ceste
- základovú dosku s vnútornými rozvodmi a prípojkami IS
- základovú dosku s vnútornými rozvodmi na vonkajší savnový wellness domček
- projekt domu a stavebné povolenie
- oporný múr zo strany rybníka